淮海家居网 | 1230人已浏览 发布时间 : 2022-11-14
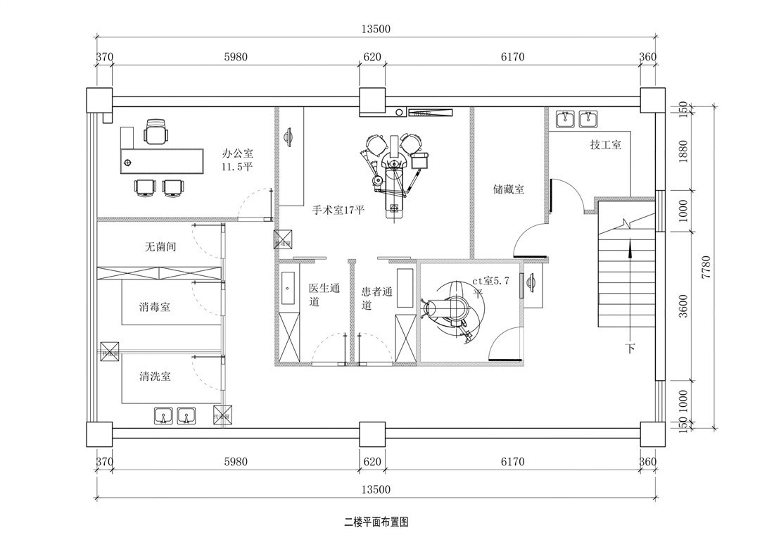
导语:作品位于临沂市兰山区北京路沿街,整体平面按照客户要求进行平面布局,3个诊室,手术室,更衣室,大厅,ct室,手术室以及口腔所需功能。口腔整体采用现代风格,简单,清晰。
作品位于临沂市兰山区北京路沿街,整体平面按照客户要求进行平面布局,3个诊室,手术室,更衣室,大厅,ct室,手术室以及口腔所需功能。口腔整体采用现代风格,简单,清晰。


大厅彩有原木色格栅以及大理石做背景墙,墙面用浅色咖色与顶面白色分开;背景墙和诊室玻璃隔断采用同样造型相互呼应。
3个诊室:一个儿童诊室,二个普通诊室。普通诊室墙面采用乳胶漆颜色和几何图像做简单造型,空间简洁明了。儿童诊室墙面和顶面都采用壁纸,增加趣味,让儿童在轻松的环境中就诊。
二楼走廊采用平顶,墙面乳胶漆,简洁大方,走廊到消毒室的隔墙采用玻璃,增加空间通透性,同时可以做到视线的延伸。
在线客服
官方微信
联系电话
返回顶部