淮海家居网 >工装案例

海棠苑

淮海家居网 | 960人已浏览 发布时间 : 2022-11-14

导语:项目位于临沂,且临沂市的市花为海棠花,其寓意美好、万事吉祥;故以海棠花为主题,整体围绕海棠花及延伸出元素为切入点,寻找主要材料和元素融入整个空间设计,打造出静、雅沉、文、沉、和的感觉。

本项目位于临沂,且临沂市的市花为海棠花,其寓意美好、万事吉祥;故以海棠花为主题,整体围绕海棠花及延伸出元素为切入点,寻找主要材料和元素融入整个空间设计,打造出静、雅沉、文、沉、和的感觉。


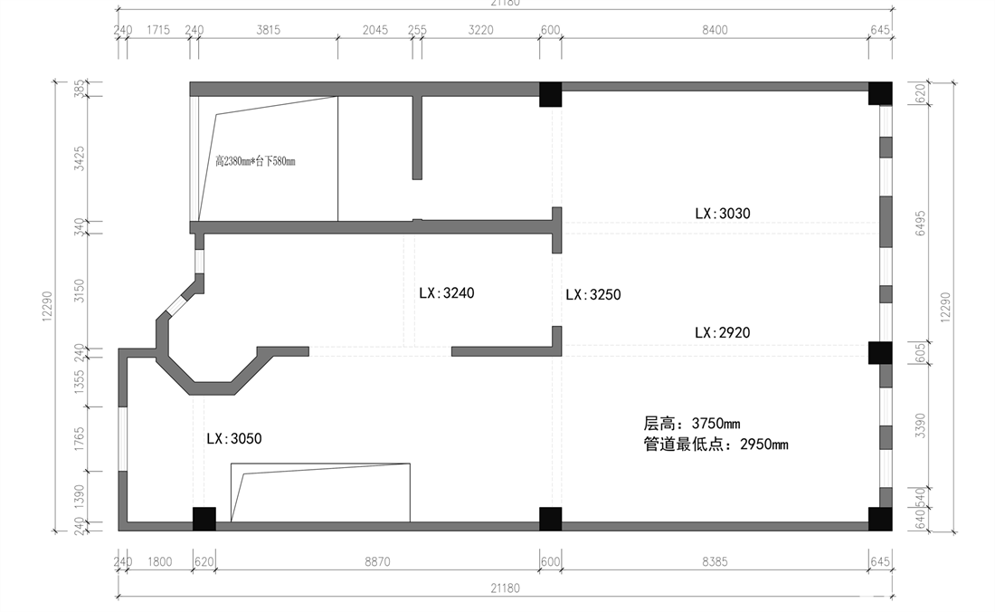
一层原始结构图


一层设计图



二层结构图


二层设计图


通过提取海棠花其色彩,形状,及吉祥美好的寓意。本案茶室背景采取海棠红点缀,茶室隔断运用海棠形状,使整个空间连贯。通过临沂的自然景色,书圣文化,打造出自然风光,回归自然,诗情画意的整体感觉。借用装饰造型、灯光、材质及软装饰品等元素来呈现宾至如归,轻松舒适的空间调性。通过透景,连廊,雅石,水景等自然形式,有诗意,亦有哲思,开合隐蔽中勾勒出符合需求的高端私人会所设计。



相关推荐:

扫码关注公众号

更多家居资讯
我家装修要花多少钱?

10秒算出装修预算

去算一算