淮海家居网 | 598人已浏览 发布时间 : 2021-11-17
导语:项目地址:卧龙湾作品名称:当代视觉之旅面积:260m²序天有四时四时指一日的朝、昼、夕、夜你曾否看过晨曦时满天露珠折射朝霞的光影见过白昼艳阳下点缀着蝉鸣仿佛在假寐的山林看过夕阳里来势汹汹卷走回翔暮鸦的晚霞见过那忽明忽暗的夜月?每一次在一团…
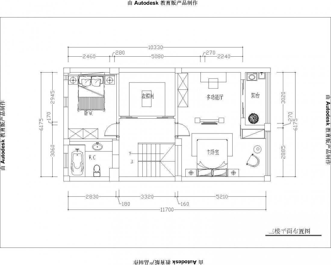
项目地址:卧龙湾
作品名称:当代视觉之旅
面积:260m²



序
天有四时
四时指一日的朝、昼、夕、夜
你曾否看过
晨曦时满天露珠折射朝霞的光影
见过白昼艳阳下点缀着蝉鸣
仿佛在假寐的山林
看过夕阳里来势汹汹卷走回翔暮鸦的晚霞
见过那忽明忽暗的夜月?
每一次
在一团模糊的感觉中开始新的冒险
杂乱无章的情感
向无法言说的事物发动袭击
去寻找那已经失去的东西
一旦找到又重新失去
又去寻找
循环往复
……
















在线客服
官方微信
联系电话
返回顶部