淮海家居网 >人物访谈

对话设计|天威装饰——黄熙雯:创意的实现是持之以恒的坚韧与热爱。

淮海家居网 | 1728人已浏览 发布时间 : 2022-01-04

导语:对话设计|天威装饰——黄熙雯:创意的实现是持之以恒的坚韧与热爱。

历时五年沉淀,专注挖掘与发现优秀青年设计师,致力于推动淮海经济区设计行业发展,打造淮海地区设计盛典,2021年度淮海设计奖于日前圆满落幕。来自淮海经济区近百位优秀青年设计师的作品登上奖项榜单,另有15位优秀设计师的作品在预赛中中脱颖而出,在总决赛的舞台上展现当代设计师风采、角逐设计奖最高荣誉。



今年的淮海设计奖以“向阳而生”为主题,吸引淮海地区多个城市设计师汇聚而来。淮海家居网作为大赛主办方,在大赛结束后对于大奖的部分代表性获奖者进行了采访。推出“对话设计师”系列专题,走进他们的艺术世界,精选他们的设计心得,听听他们的获奖感受。


本期将为大家推出的是“最强空间设计作品奖”获奖者,大隐空间设计黄熙雯



黄熙雯个人简介
————————
毕业于南京理工大学(工业设计)
室内装饰设计师
2020年任职于江苏大隐空间设计
2021年度荣获大金14届内装全国“网络人气奖”
2021年度荣获徐州淮海家居网“业主最喜爱十大作品奖”
2021年度荣获徐州淮海家居网“最强空间设计奖”

设计理念:

以家为原点,以家为引力,发掘生活中细微的美从而做一个有温度的设计师。


▲黄熙雯设计师采访视频


采访摘要


主持人:
今天我们非常荣幸邀请到了大隐设计的设计师黄熙雯,一位非常年青的设计师。我想首先请问你为什么要选择从事设计这个行业呢?

黄熙雯:
首先因为我很热爱这个行业。我享受在有限的空间里塑造一个温馨的家,在给别人带来幸福感的同时,我自己也会感到很幸福。

主持人:
那我想请问您的设计理念是什么呢?

黄熙雯:
以家为原点,发掘生活细微的美,做一个有温度的设计师。

主持人:
我想请问作为青年设计师的代表,你如何看待设计师这个行业?

黄熙雯:
其实设计师这个行业并不是表面那么光鲜亮丽。因为我们平时经常去工地,每次去完工地都是灰头土脸的,每天与材料打交道,跟电脑屏幕打交道。但是我依然很热爱这个行业,从无到有,它是一个幸福的过程,就像一个房子一点一点地落地,到最后的完工,我觉得是一件非常有成就感的事情。

主持人:
能看出非常热爱这个行业啊,这次我们淮海设计奖收到黄设计师的作品是一套实景落地的作品。那么我想请问你在这套作品中想表达的是些什么呢?

黄熙雯:
因为在这个高科技的时代,人们常常因为手中的电子产品而忽略掉了身边的美与自身的健康问题。所以说我的主要目的就是希望在这个空间中,表达情感的一个连接,所以说我提到了光影以及社交厨房的一个概念,目的就是在这个场所中,希望家人之间能够进行一个情感的交接。

主持人:
黄设计师提到光影交接的一个社交厨房的概念,非常优秀。我也希望在未来,黄设计师能在自己喜欢的设计行业中做出更好的作品。

黄熙雯:
好的,谢谢。



黄熙雯获奖作品:东方润园现代风格


“现代风格”它有着它独有的调性,简单却又精细,世界如此辽阔我们能够把控的也只有自己的小千世界。从全关的视角出发,带入情感去设计,摒弃繁杂的形式主义,让生活回归诗意典雅的质感。

        对于家的样子,我们也有着模糊而清晰的想象:满足生活上的功能需求、符合审美艺术氛围、温暖而舒适过成想要的样子......


小区:东方润园
风格定位:现代案例
户型:平层
套内面积:163 M²


客户需求:

家庭成员:男主、女主、一个男孩。优先目前的生活需求做方案,空间以实用、舒适为主,尽可能开放, 有一点特色。女业主喜欢买衣服包包,需要衣帽间,男业主需要一个独立书房,方便办公。    男业主喜欢深色,女业主喜欢温馨、明亮,色调特别的感觉。







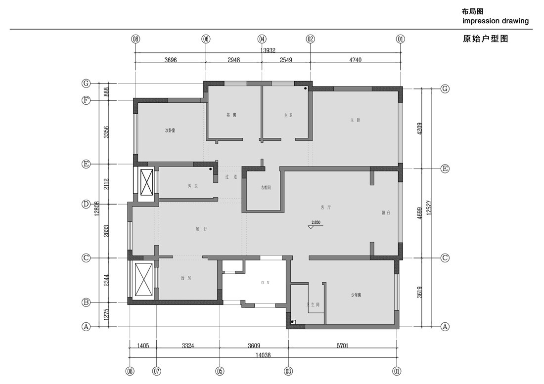
(原始结构图)


待优化项目:
①入户玄关功能改造
②厨房的规划及利用
③公共区储物及动线
④餐厅功能选择改造
⑤主卧配置动线优化
⑥衣帽间与主卫关系

(平面布置图)

细节设计


空间氛围的定位
构想的开始

氛围:放松、自然、简洁、温馨、趣味、沉稳

感观、视觉、触觉及经验值为参考值




照明设计



实景图


健康整洁的生活是现代人追求的一种生活方式,创造一个舒适、现代的人居环境是本案的设计目标。




现代简约风格的迷人之处在于简约而不简单,时尚又实用,没有靓丽的装饰,用简单的线条和搭配创造出令人心动的画面,简约的空间在充足自然光的拥抱中,宁静又温暖。





悬空储物柜的设计让客厅与餐厅之间体现出一种若隐若现的神秘感,同时空间的采光更加通透。




岛台区与餐厅融为一体,自然美丽的蝴蝶灯饰成为吧台的主要装饰特征之一。




走道两侧设计了客卫、书房与主卧。空间整体运用沉稳的深咖和皎洁的白为主基调,运用充满活力的橙色点缀空间,营造出充满动感的空间氛围。

相关推荐:

扫码关注公众号

更多家居资讯
我家装修要花多少钱?

10秒算出装修预算

去算一算